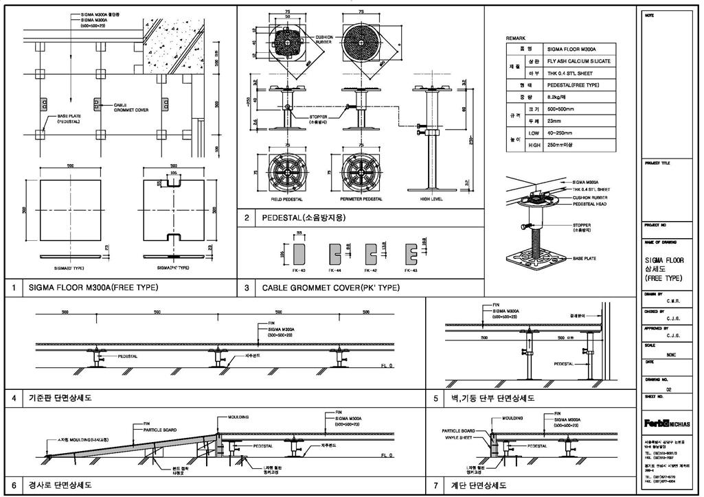
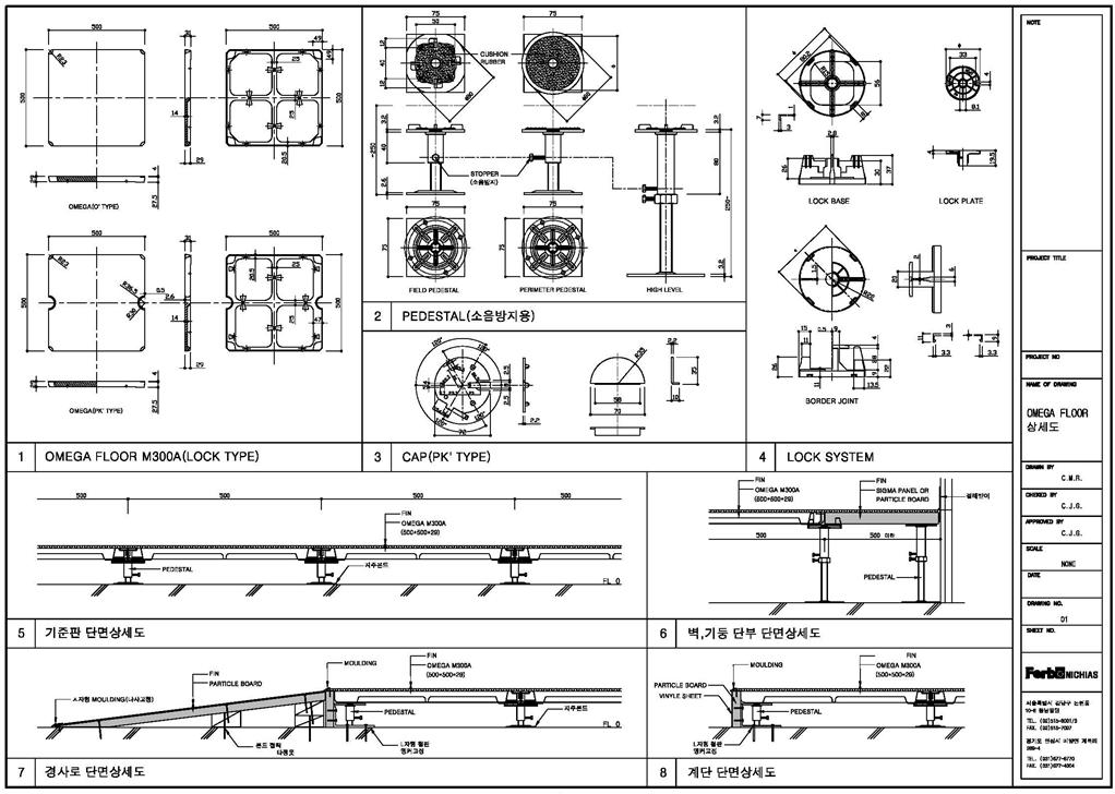
G L O B A L B U S I N E S S

CAD도면
ACCESS FLOORCAD도면